A Águas do Tejo Atlântico tem estimulado a investigação e adoção de soluções para mitigação do uso de combustíveis fósseis.
A sociedade tem hoje em dia uma grande dependência energética, quer em termos industriais, quer em termos pessoais do ponto de vista das necessidades básicas e de conforto. Esta realidade não é exceção no setor da água e saneamento onde, a exemplo, na Águas do Tejo Atlântico o valor da energia adquirida foi de 8 milhões de euros, representando cerca da 29% dos FSE.
Embora a necessidade e procura sejam mais elevadas que no passado, a consciência atual, nomeadamente ao nível da sustentabilidade do planeta, tem promovido a procura e desenvolvimento de fontes alternativas, por forma a tornar as cidades e comunidades mais verdes e mais amigas do ambiente.
Esta é uma preocupação sempre presente na Águas do Tejo Atlântico que tem estimulado a investigação e adoção de soluções para mitigação do uso de combustíveis fósseis.
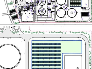
Além dos vários projetos internos em curso neste âmbito, o facto de Lisboa ser a Capital Verde europeia 2020 permitiu a criação de uma parceria entre a Tejo Atlântico e a Câmara Municipal de Lisboa que possibilitará a instalação de duas centrais solares fotovoltaicas nas imediações das Fábricas de Água de Alcântara e Beirolas.
Estas duas centrais fotovoltaicas têm como objetivo o aproveitamento de energias renováveis e são um primeiro passo no sentido de se caminhar para a neutralidade energética num conjunto significativo de instalações, reduzindo as emissões de CO2 e tendo como meta a descarbonização da economia.
No caso da FA de Alcântara, a central ocupará uma área de cerca de 14.000m2 e terá capacidade de produzir 990kWac.
No que se refere à Fábrica de Água de Beirolas, a instalação terá uma área de 4.000m2 e irá ter capacidade de produzir cerca de 240kWac.
Com um investimento global de aproximadamente 1,5 milhões de euros, foi agora lançado o concurso público internacional para a Empreitada de Fornecimento e Instalação de Centrais Fotovoltaicas nas Fábricas de Água de Alcântara e Beirolas, com o início das obras previsto para setembro de 2020 e a entrada em funcionamento das referidas instalações em meados de 2021.
MULTIMÉDIA